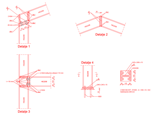
Bygningsstål
COTECH kan udarbejde beregninger og udarbejde al den tilhørende produktionsdokumentation til dit bygningsstål.
Vi er certificeret efter EN 1090-2, og vores certificering går op til Execution Class 3.
Husk at siden 1. juli 2014 skal bygningsstål til din nye om- og tilbygning være CE-mærket.
Dette stiller krav til at leverancen skal være gennemregnet og dokumenteret efter EUROCODES og EN 1090-2.
Udover selve beregningsdelen kan vi være med til at sikre, at du får leveret dit bygningsstål i både sort stål, rustfrit stål eller aluminium – og dermed overholde de gældende krav!
Fra skitseplan kan vi optegne konstruktionen og beregne denne igennem, og sikre at produktionsdokumentationen efterfølgende efterlever de fremstillingskrav der er ifølge EN 1090-1 (sort stål og rustfrit stål) eller EN 1090-3 (aluminium).
Vi konstruerer gerne, vi beregner gerne – og vi sikrer gerne at du får den endelige konstruktion leveret fuldt dokumenteret med CE-mærkning.
Valget er helt dit – hvor meget du ønsker COTECH skal være involveret i netop dit projekt!









